HGV Wheel-play detectors manufactured by VLT are quite simply, the best option money can buy. Extremely heavy duty in build-quality and manufactured to be used within the testing centre environment all day, every day without stopping. These VLT units are exactly the same model used by DVSA over the last 20 years in the UK's testing centres. Please Note Pricing : Our Cash Price : £13,750.00 plus 20% vat (£16,500.00) Lease Terms can be arranged on this equipment if required. (Subject to Finance Company clearance, Terms & Conditions) FULL TECHNICAL SPECIFICATIONS BELOW
HGV Wheel-play detectors manufactured by VLT are quite simply, the best option money can buy. They are heavy duty in build-quality and manufactured to be used within a test centre environment all day, every day without stopping. When you install a set wheel-play detectors, they are usually installed into your workshop floor, so to overcome any possibility of corrosion, both the wheel play detectors and the steel sub-frames are hot dipped galvanised. Designed to operate effortlessly with a 20 tonne axle weight they are fully electro-hydraulic in operation and are supplied with a heavy duty steel control box housing the pump unit and the electronics.
The operating handset is completely cable free, operated via radio frequency, and incorporates the different mode settings and built-in high lumen torch. Quite simply, these units are easy to operate and designed to give maximum reliability and performance once installed into your workshop.
DVSA testing stations in the UK have had these units installed in their own premises for over 20 years, hence they are fully Approved by the DVSA for use in ATF Test Lanes.
Warranty Period : 24 Months full Manufacturers Warranty
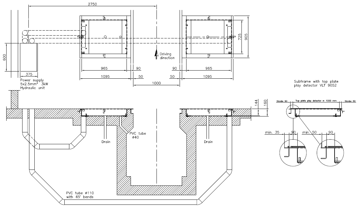
Typical Wheel-play detector layout drawing, with dimensions :

VLT Wheelplay detectors can be supplied in 16 movement or 8 movement plates.
In the UK 8 movement plates are the standard required.

| PLAY DETECTORS for heavy goods vehicles | |||
| Model | VLT 9143 | ||
| Maximum axle weight | 20000 kg | ||
| Maximum wheel weight | 10000 kg | ||
| Total maximum movement | 200mm | ||
| Maximum movement each side | 100 mm | ||
| Horizontal force, opposite | 60 kN | ||
| Horizontal force, on each plate | 30 kN | ||
| Cars, light goods vehicles program | no | ||
| Heavy goods vehicle, buses program | yes | ||
| Extra connection port for load simulator | no | ||
| Special steering facilities | no | ||
| Pit dimensions Optional sub-frame | 725mm x 985mm x 160 mm Part Number 9006 | ||
| Motor power | 3.0 kW | ||
| Electrical supply | 400 V, 3 phase, 50 Hz | ||
| Automated program cycles | no | ||
| Manual program | yes | ||
| Remote control / hand lamp | radio frequency | ||
| Movement of the plates | 8 | ||
Pricing Promise :
Please Note : All Pricing on our Website includes 20% vat.
We promise never to be beaten on price by our competitors, if you see a price advertised cheaper than us, we will match it for you, no problem! We simply need to make sure the item you have seen is identical and in our stock, and then we’re good to go.
Some of the Scottish Highlands & Islands may incur extra delivery costs, if you are located in these regions, please ring before you buy.